Battery AMTB - Gaffey Bulge
|
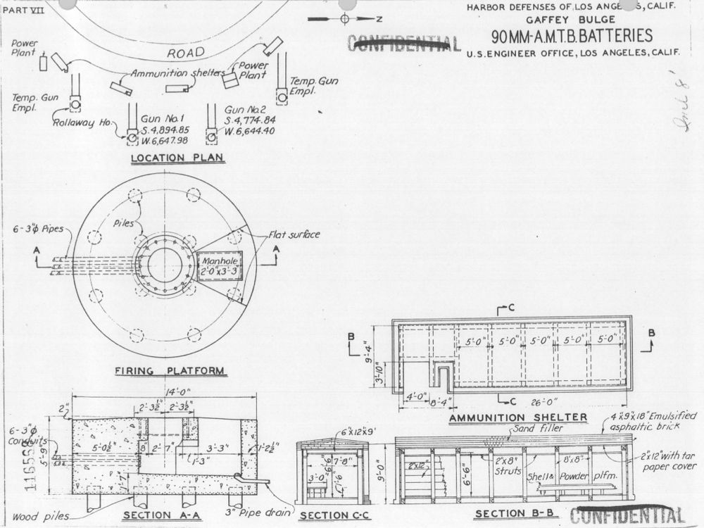
Battery AMTB - Gaffey Bulge (1943-1946) - Battery AMTB - Gaffey Bulge was a reinforced concrete World War II 90mm gun battery on Fort MacArthur, Los Angeles County, California. AMTB stands for Anti Motor Torpedo Boat. Battery construction started Jun 1943, was completed Oct 1943 and transferred to the Coast Artillery for use 4 May 1944. Deactivated in 1946.
HistoryPart of the Harbor Defense of Los Angeles. Four Anti Motor Torpedo Boat (AMTB) batteries were built for the Harbor Defense of Los Angeles during World War II under Job No. FS-8 at a total cost of $76,576.03. All four batteries were constructed between June 1943 and October 1943 and all four were accepted for service on 4 May 1944. Each of the four batteries consisted of two fixed gun emplacements of 90mm M1 guns on M3 pedestal mounts with a heavy shield. Additionally provisions were made for two temporary mobile gun positions at each of the four locations and each position had supporting structures for ammunition storage and a central power source. Two of the AMTB batteries were located on Fort MacArthur, (Battery AMTB - Navy Field & Battery AMTB - Gaffey Bulge) and the other two were located off the main reservation at Terminal Island (Battery AMTB - Terminal Island) and Bluff Park, Long Beach (Battery AMTB - Bluff Park). The dual mission of these AMTB batteries was both to defend the harbor against smaller, faster naval vessels that might evade the larger batteries and to defend against aerial attack.
![]()
Current StatusNo gun or mounts in place but the base of the mounts can still be seen. The Gaffey Bulge is a semicircular protrusion in Gaffey Street that allows Gaffey Street to go around a hill. Mount base #2 is covered with a circular platform that once contained a tourist telescope.
Sources:
Links: Visited: 31 Jan 2009 Battery AMTB - Gaffey Bulge Picture Gallery
| |||||||||||||||||||||||||||||||||||||||||||||||||||||||






